2712 S Pine Meadows Drive, Bloomington, Indiana 47403-3411 MLS 2025376
0.23 acre - 2712 S Pine Meadows Drive, Bloomington, Indiana 47403-3411
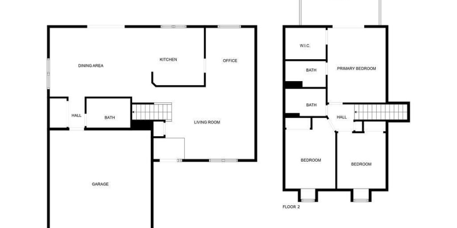
Thoughtfully remodeled, this two-story home offers 3 bedrooms, 2.5 bathrooms, and an inviting layout perfect for both everyday living and entertaining. The family room flows seamlessly into the kitchen, while the vaulted ceiling enhances the living, dining, and kitchen areas with abundant natural light. Upstairs, you’ll find all three bedrooms, including a spacious primary suite with access to a private 12′ x 15′ deck—an ideal retreat. The main level features hardwood flooring, while the remodeled kitchen showcases Thomasville soft-close cabinetry with glass inserts, a stainless apron sink, stylish tile backsplash, Whirlpool stainless appliances, and a functional island/bar. Updates include modern light fixtures and ceiling fans, rebuilt decking, new ductwork and registers, and a new roof (2017). More recent upgrades include a new air conditioning unit (2018), furnace (2022), and a wooden privacy fence (2023). Sellers are willing to provide a flooring and/or paint allowance with an acceptable offer, giving buyers the opportunity to customize the home to their taste. The property is enhanced by its outdoor beauty, with cherry trees along the side yard that bloom pink and white in the spring and provide edible fruit, along with a unique, mature Chinquapin Oak in the backyard. All trees have been professionally cared for by Bluestone Tree, ensuring their long-term health and beauty. Conveniently located on Bloomington’s southwest side, this home is less than 15 minutes from downtown, the east side, and the west side. The neighborhood itself is quiet, walkable, and close to local highlights including Woolery Mill, Clear Creek Trail, and RCA Park. Switchyard Park, the Rail Trail, and the B-Line Trail are also easily accessible, making it a wonderful spot for both convenience and recreation.
Listing provided courtesy of: Keller Williams - Indy Metro South LLC, Micah Heath.
- Listing ID : 202537617
- Bedrooms : 3
- Bathrooms : 2
- Lot Area (ACRES) : 0.23 acre
- Visits : 0 in 49 days
- Keith Realty & Auction Group
- View website
- 812-714-8250
- 812-714-8237
-





































































