1210 S Tall Oaks Drive, Bloomington, Indiana 47403 MLS 202538299
0.36 acre - 1210 S Tall Oaks Drive, Bloomington, Indiana 47403
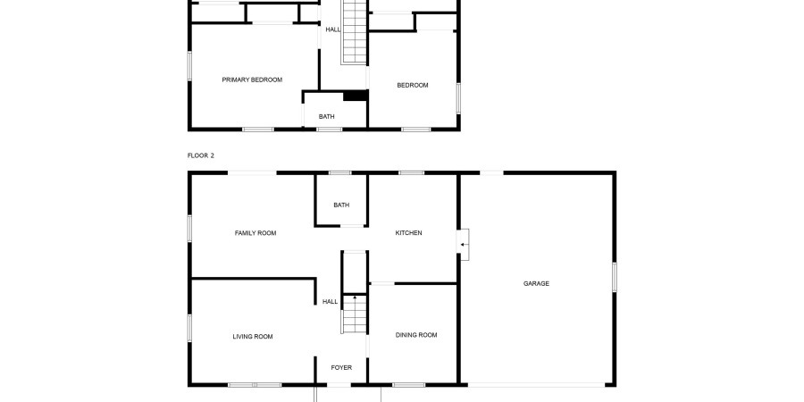
Welcome to this move-in-ready 4 bedroom, 2.5 bath home set on over a third of an acre. This home is full of desirable features, including hardwood floors throughout most of the home, including all the bedrooms. Fresh paint throughout the whole house as well as ample natural light, make this such a bright and cheery home. The main level features a living room, dining room plus an additional family room (with brand new carpet) that makes for a great flex space, perfect for an office or play room. The large deck and backyard can be accessed from the family room. The 4 generously sized bedrooms are on the upper level, including the primary suite with updated bathroom (2022). A second full bathroom is also found upstairs. Additional highlights include a brand new septic system (installed 9/19/25), brand new water heater (9/17/25), and a fully encapsulated crawlspace (August 2025). Exterior features include a backyard shed, great for extra storage, new retaining wall in 2020, beautiful mature trees, an incredible array of heirloom peonies that are over 100 years old, iris, oakleaf hydrangea and more. The unique location of this house offers the privacy and beauty of a country setting while still being just minutes from shopping, dining, and recreational amenities and only 2.5 miles to Indiana University’s Sample Gates.
Listing provided courtesy of: Sterling Real Estate, Sally Baird.
- Listing ID : 202538299
- Bedrooms : 4
- Bathrooms : 2
- Lot Area (ACRES) : 0.36 acre
- Visits : 0 in 44 days
- Keith Realty & Auction Group
- View website
- 812-714-8250
- 812-714-8237
-



































































