2617 N County Road 990, Worthington, Indiana 47471 MLS 202540892
4.02 acre - 2617 N County Road 990, Worthington, Indiana 47471
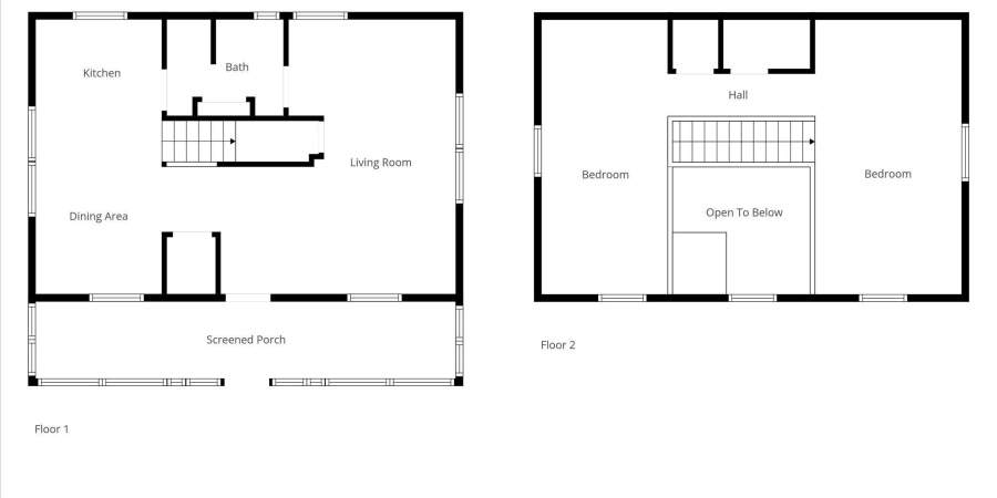
Secluded. Scenic. Full of Opportunity. Discover a rare recreational retreat tucked away on over 4 wooded acres in Owen County, just beyond the Greene County line. Surrounded by nature and positioned between Fish Creek and the West Fork of the White River, this property offers an ideal setting for a private getaway, hunting camp, fishing retreat, or a unique short-term rental opportunity. A gated entrance from CR 990 leads down a long private drive to a peaceful clearing where a rustic river cabin, built in 2005, awaits. Designed for leisure and escape, the 1,120 sq ft cabin features an open-concept main level with living area, kitchen, dining space, and full bath. Upstairs, a spacious loft provides two sleeping areas with closets perfect for hosting family, friends, or weekend guests. Tongue-and-groove wood walls and wide-plank flooring deliver the classic cabin feel buyers are searching for. The property is well-equipped for extended seasonal use with multiple heating and cooling options, including a wall-mounted gas heater, traditional wood stove, window air unit, and a newer mini-split system. Unwind on the screened-in porch after a day outdoors or enjoy the convenience of covered parking beneath the cabin. Outdoor enthusiasts will appreciate the 50-amp camper hookup, storage shed for gear and equipment, and direct access to recreation right outside the door. Whether used as a personal retreat or positioned as a distinctive investment, this property offers privacy, versatility, and a true escape from the everyday. Note: Property is intended for recreational/seasonal use at this point. Financing will require flood insurance.
Listing provided courtesy of: Century 21 Scheetz - Bloomington, Corey Mauder.
- Listing ID : 202540892
- Bedrooms : 2
- Bathrooms : 1
- Lot Area (ACRES) : 4.02 acre
- Visits : 0 in 148 days
- Keith Realty & Auction Group
- View website
- 812-714-8250
- 812-714-8237
-



























































