1743 W Ezekiel Drive, Bloomington, Indiana 47403 MLS 202544410
0.15 acre - 1743 W Ezekiel Drive, Bloomington, Indiana 47403
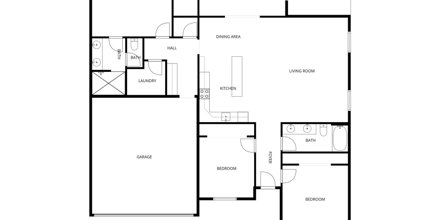
Brand-New Home by Sacksteder Properties – 100% Done and Move-In Ready! Built by Sacksteder Properties, this 1,897 sq. ft. new construction home combines modern comfort with everyday convenience. Ideally located just minutes from I-69 and within walking distance to Summit Elementary and the Clear Creek Trail, it’s a home that fits seamlessly into your lifestyle. Inside, a split-bedroom layout offers privacy with three bedrooms, including a spacious primary suite with a large walk-in closet, double vanity, and a fully tiled walk-in shower. The open-concept living room and kitchen feature vaulted ceilings, an electric fireplace, and plenty of room for gatherings. A versatile formal dining room with oversized windows can easily flex into a bright sunroom or home office. The kitchen is designed to impress with soft-close shaker cabinets, quartz countertops, subway tile backsplash, and stainless steel GE appliances. Throughout the home, you’ll find durable luxury vinyl plank flooring and craftsman-style trim. Closets come complete with shelving for true move-in readiness. Step outside to a covered patio and a generous backyard. The yard is finished with front sod and seed/straw in the back and sides. Every detail has been thought through, from finishes to function. The home comes with a Builder 2-10 warranty for peace of mind. Full blueprints, warranty details, and a complete features list are available upon request.
Listing provided courtesy of: Beyers Realty, Sable Beyers.
- Listing ID : 202544410
- Bedrooms : 3
- Bathrooms : 2
- Lot Area (ACRES) : 0.15 acre
- Visits : 0 in 49 days
- Keith Realty & Auction Group
- View website
- 812-714-8250
- 812-714-8237
-





























































