7163 & 7165 W Tulip Street, Bloomington, Indiana 47404 MLS 2025446
0.48 acre - 7163 & 7165 W Tulip Street, Bloomington, Indiana 47404
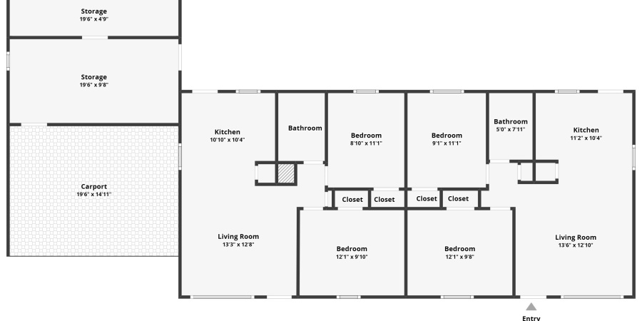
Property with incredible income potential! This duplex features two 624 square foot units each including 2 bedrooms, a living room, an eat-in kitchen and a full bath. Built by Kenton Robinson in 1969 it has been meticulously updated by its current owner with extensive documentation ready to share! Prior to the current owner both units in this duplex were rented. But considering the location with almost a half acre lot, beautiful garden beds and trees nestled in a residential cul-de-sac, this property presents a wonderful opportunity to be owner occupied with the second unit rented for income as the current owner has done! The possibilities are endless with this special property! Updates include but not limited to vinyl flooring, 2 furnaces, 2 air conditioners, concrete pad and mini barn, carport including a partially finished flex space with electricity and wood stove heating, and extensive landscaping with more ROI opportunities for a new owner as well!
Listing provided courtesy of: The Indiana Team LLC, Rose-Antoinette Seiwert.
- Listing ID : 202544680
- Bedrooms : 4
- Bathrooms : 2
- Lot Area (ACRES) : 0.48 acre
- Visits : 0 in 1 days
- Keith Realty & Auction Group
- View website
- 812-714-8250
- 812-714-8237
-





































































