4803 N State Road 43, Solsberry, Indiana 47459 MLS 202545641
1 acre - 4803 N State Road 43, Solsberry, Indiana 47459
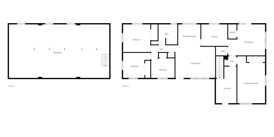
If you’ve been hoping to find a spacious, clean, and move in ready four bedroom house in a quiet, country setting, some holiday magic just might be in store for you! This quaint and cozy home is nestled on a one acre lot in beautiful Greene County just 1.5 miles from the locally famous Yoho’s Grocery and only 11 miles to Bloomington’s Westside and I-69. The exterior of this property features a brick home with a new roof in 2022, a extra wide asphalt driveway with 2-bay carport, a 20′ x 14′ covered patio overlooking the backyard, and a 18′ covered front porch at the front entry. A small shed on the property has a new metal roof; the shed is older and being sold “As Is”. Inside you will find beautiful hardwood floors in much of the main level, a living room, breakfast room, spacious kitchen with ample cabinetry and counter/prep space, a family room or formal dining room, four bedrooms, a large laundry room, and 1.5 baths. In the lower level you’ll find find a gas furnace installed in 2015, a brand new 200 amp electrical panel, and newer water heater, plus a utility sink and work bench. The lower level is clean and has tall ceilings, providing a plethora of flex space for the new home owner. Other recent improvements include: some new windows (2025), new kitchen stove (2025), new interior paint, and new vinyl flooring where there was previously carpet. A propane tank is included with the sale with enough fuel to keep you cozy through much of the Winter. What are you waiting for? Schedule your showing today; you will not be disappointed! NOTES: 1- This home is currently owned by a church and has been rented out recently to staff. All mechanicals, kitchen appliances, etc. are in good working order. That said, the seller’s disclosure form is marked “do not know” as none of the church trustees have ever lived in the home. 2- Property taxes will increase once the home is owner occupied and the tax exempt status falls off.
Listing provided courtesy of: Century 21 Scheetz - Bloomington, Melissa Murphy.
- Listing ID : 202545641
- Bedrooms : 4
- Bathrooms : 1
- Lot Area (ACRES) : 1 acre
- Visits : 0 in 38 days
- Keith Realty & Auction Group
- View website
- 812-714-8250
- 812-714-8237
-







































































