115 N Washington St Unit 303, Bloomington, Indiana 47408 MLS 202545854
0 acre - 115 N Washington St Unit 303, Bloomington, Indiana 47408
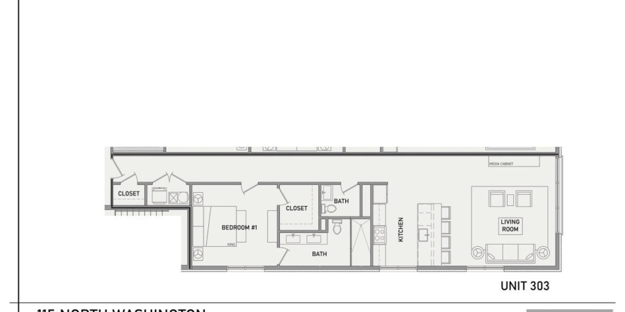
Welcome to The Sullivan, an exclusive new condominium address on Kirkwood Avenue, ideally situated between Bloomington’s historic Courthouse Square and the Indiana University campus. Thoughtfully designed for residents who value refined living, walkable convenience, and timeless style, The Sullivan brings an elevated residential experience to the heart of Bloomington. Each of the eight residences, curated by our professional interior designer, features wide plank oak hardwood flooring, custom cabinetry, and professional-grade appliances selected for quality, performance and beauty. Each unit has been designed to create a cohesive and inviting atmosphere throughout the home. Spacious layouts, large windows, and elegant detailing provide a sophisticated yet comfortable backdrop for everyday living and memorable occasions. Unit 303 sits on the third level of the south end of the building with beautiful southern light exposure, and is a generous 1 bed, 1 bath featuring an open concept dining room, kitchen, and living room, and juliet balcony. Residents will enjoy access to a finished rooftop terrace designed for entertaining, complete with sweeping views of Indiana University’s campus skyline. The location offers unmatched walkability to IU football and basketball games, as well as popular restaurants, cafés, galleries, and shopping right outside your door. The Sullivan is currently under construction and scheduled for completion in February 2026. Early buyers will have the advantage of securing their preferred residence and planning ahead for a seamless move. This is a rare opportunity to own an upscale downtown home in one of Bloomington’s most desirable and connected locations. A limited offering of only eight residences. Inquiries and reservations now being accepted.
Listing provided courtesy of: FC Tucker/Bloomington REALTORS, Alex Root.
- Listing ID : 202545854
- Bedrooms : 1
- Bathrooms : 1
- Lot Area (ACRES) : 0 acre
- Visits : 0 in 62 days
- Keith Realty & Auction Group
- View website
- 812-714-8250
- 812-714-8237
-



















