12905 E Shady Meadows, Solsberry, Indiana 47459 MLS 202546067
1.02 acre - 12905 E Shady Meadows, Solsberry, Indiana 47459
Property Description
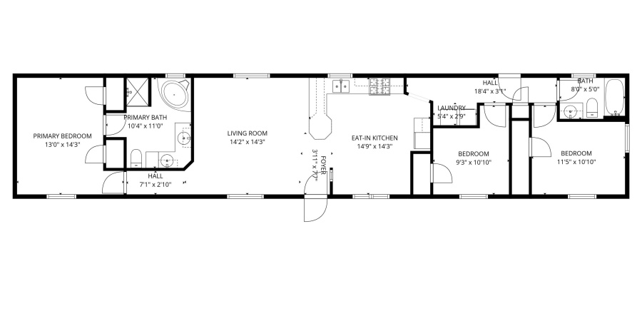
Discover affordable living on a peaceful 1-acre wooded lot with this well-kept single-wide home offering 3 bedrooms and 2 full baths. The open floor plan features an inviting eat-in kitchen with all appliances included, flowing into a comfortable living area. The spacious primary suite offers both a shower and a relaxing soaking tub. Enjoy quiet mornings on the covered front porch complete with a swing, and take advantage of the small storage shed for extra convenience. A great opportunity for those seeking privacy and space with easy, move-in-ready comfort.
Basic Details
Property Type : Residential
Listing Type : For Sale
Listing ID : 202546067
Price : $69,900
Bedrooms : 3
Rooms : 5
Bathrooms : 2
Half Bathrooms : 0
Year Built : 1998
Lot Area (ACRES) : 1.02
Total Finished SqFt : 1,053
Address Map
Country : US
State : IN
City : Solsberry
Area : Greene County
Subdivision : None
Zipcode : 47459
Street : Shady Meadows
Street Number : 12905
Floor Number : 0
Longitude : E0° 0' 0''
Latitude : N0° 0' 0''
Additional Details
Property SubType : Manuf. home/mobile home
Status : Active
Pool Y/N : No
Style : One story
School District : Eastern greene schools
Elementary : Eastern greene
Middle School : Eastern greene
High School : Eastern greene
Waterfront Y/N : No
New Construction : No
Investment Property Y/N : Yes
Lot Dimensions : 1x1
# of Fireplaces : 0
Main Level SqFt : 0
Approx. Lot Size SqFt : 44,431
Total Baths : 2
Annual Taxes : $120
Association Dues $ : $0
Other Fees $ : $0
Garage Y/N : No
Fireplace Y/N : No
Garage Type : Detached
Laundry Level : Main
Water Utility : City
Sewer : Septic
REO Y/N : No
Basement Y/N : No
LOT DESCRIPTION : Partially wooded, Rolling
EXTERIOR : Vinyl
BASEMENT/FOUNDATION : Crawl
HEATING/FUEL : Propane
COOLING : Central air
SALE INCLUDES : Microwave, Refrigerator, Washer, Dryer-electric, Range-gas
Age : 27
Listing provided courtesy of: Dzierba Real Estate Services, Linda Dzierba.
Residential For Sale
- Listing ID : 202546067
- Bedrooms : 3
- Bathrooms : 2
- Lot Area (ACRES) : 1.02 acre
- Visits : 0 in 34 days
$69,900
Agent info
2411 River Road, Spencer, IN 47460
- Keith Realty & Auction Group
- View website
- 812-714-8250
- 812-714-8237
-
Contact Agent





































