3434 S Ashwood Drive, Bloomington, Indiana 47401-9762 MLS 202602808
0.55 acre - 3434 S Ashwood Drive, Bloomington, Indiana 47401-9762
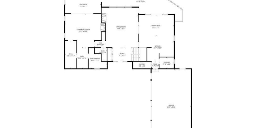
This beautifully maintained 3-bedroom, 2.5-bath home is being offered for the first time by its original owners. Nestled on a wooded lot just minutes from Indiana University and downtown Bloomington, the home combines quality construction with timeless design and thoughtful updates. Built with 2×6 framing (a premium feature at the time), this custom home offers vaulted ceilings, clerestory windows, and exceptional natural light. The main level features an open living/dining area, a remodeled kitchen (updated just before 2020), and a spacious primary suite with a walk-in closet, en-suite bath including a Jacuzzi tub, and access to a private sunroom. You’ll also find a fireplace in the living room and another in the primary suite. The walk-out lower level includes two additional bedrooms, a full bath, a large rec/family room with its own fireplace, and an expansive mechanical/storage room with its own utility sink—ideal for hobbies or workshop space. Additional utility sinks are located in the laundry room and garage. Notable features: Brand new carpet-just installed; Oversized 3-car garage; Abundant closet space throughout; Located on the Bloomington Transit bus line; Quiet, wooded lot offering privacy and peaceful views; This home has never housed pets, or smokers, and was lived in by the original owners well into their 80s. Even the original white carpet remained in good condition for over 30 years—a testament to the level of care. It’s now freshly updated and move-in ready. Priced below recent appraised value, this property offers the perfect opportunity to personalize a truly solid, well-loved home in one of Bloomington’s most desirable locations.
Listing provided courtesy of: RE/MAX Acclaimed Properties, Amy Kopp.
- Listing ID : 202602808
- Bedrooms : 3
- Bathrooms : 2
- Lot Area (ACRES) : 0.55 acre
- Visits : 0 in 24 days
- Keith Realty & Auction Group
- View website
- 812-714-8250
- 812-714-8237
-





































































