4514 E Compton Boulevard, Bloomington, Indiana 47401 MLS 202530246
0.22 acre - 4514 E Compton Boulevard, Bloomington, Indiana 47401
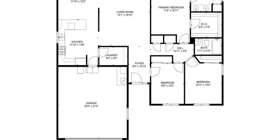
Incredibly solid home in a highly desirable east side location—at the best price Gentry East has seen in over a year! This well-maintained one-story ranch offers generous room sizes, minimal steps, and is impeccably clean—ready for its next owner to make it their own. You’ll appreciate the brand-new carpet, new stainless steel appliances and fresh paint throughout, along with updated flooring in the primary en suite bath. The thoughtfully designed layout of the home provides ample storage, including a generous walk-in closet in the primary suite.With its practical design and timeless layout, this home is a perfect blend of comfort and potential. Located in Gentry East, a welcoming neighborhood with sidewalks and light HOA restrictions that help maintain property values, this home offers incredible value in the Rogers/Binford area. No other home in Gentry East has sold for this price or less in the past 15 months—this is a rare chance to get into a stellar neighborhood at an unbeatable value.
Listing provided courtesy of: Deb Tomaro Real Estate, Deborah Tomaro.
- Listing ID : 202530246
- Bedrooms : 3
- Bathrooms : 2
- Lot Area (ACRES) : 0.22 acre
- Visits : 0 in 1 days
- Keith Realty & Auction Group
- View website
- 812-714-8250
- 812-714-8237
-





















































